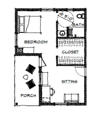
The suite proper. To see the suite in conjunction with the family house, go to Option #7.
CGEV’s non-profit branch, Many Turtles Learning Collective, has obtained 501c3 status and donations in the form of checks can be mailed to Lisa Berley at :817 Emory Drive in Chapel Hill, 27517